Sign up for FlowVella
Sign up with FacebookAlready have an account? Sign in now
By registering you are agreeing to our
Terms of Service
Loading Flow

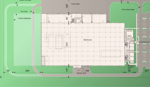
PROJECT BLACKHAWK
+35 Acres | 350,000 SF with 100,000 SF Expansion
Paul Hoffman
James Tully
Jake Terkanian
INDUSTRIAL