Sign up for FlowVella
Sign up with FacebookAlready have an account? Sign in now
By registering you are agreeing to our
Terms of Service
Loading Flow



Questa Chiesa fu edificata a partire dal 1294, con i contributi di famiglie fiorentine, su una piccola Chiesetta fiorentina francescana. Il progettista fu Arnolfo di Cambio
Chiesa di Santa Croce

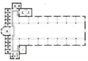
Pianta della Chiesa, con 10 cappelle disposte simmetricamente ai lati dell’abside.



La navata centrale misura 20x34 metri, è uno spazio unitario, aperto, luminoso e semplice. Mentre la navata maggiore ha una copertura in capriate lignee.


La facciata della chiesa è stata costruita nell’800.