Sign up for FlowVella
Sign up with FacebookAlready have an account? Sign in now
By registering you are agreeing to our
Terms of Service
Loading Flow



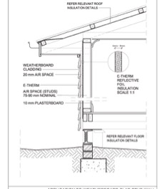
What is cladding?
Cladding is a non-loadbearing skin or layer attached to the outside of a home to shed water and protect the building from the effects of weather. It is a key element in the aesthetic appeal of the home and directly influences both building cost and property value.
Your choice of cladding has a significant effect on the environmental performance of your home.
Initial impacts of cladding, such as embodied energy, resource depletion and recyclability, must be balanced against maintenance and durability appropriate to life span.
The primary roles of cladding are to control the infiltration of weather elements and the egress of water vapour while providing a durable, aesthetically pleasing appearance. Secondary roles can include sound and thermal insulation, fire resistance, and the capacity for cleaning in dusty, polluted or vandal prone environments.
Photo Credit: Jennifer Powell photography
